Продается уникальное предприятие на территории Санкт-Петербурга, в шаговой доступности от станции Метрополитена ст. Волковская.
| Населенный пункт | Санкт-Петербург |
|---|---|
| Район города | Фрунзенский |
| Улица | улица Прогонная |
| Номер дома | 3 |
Описание
Продается уникальное предприятие на территории Санкт-Петербурга, в шаговой доступности от станции Метрополитена ст. Волковская.
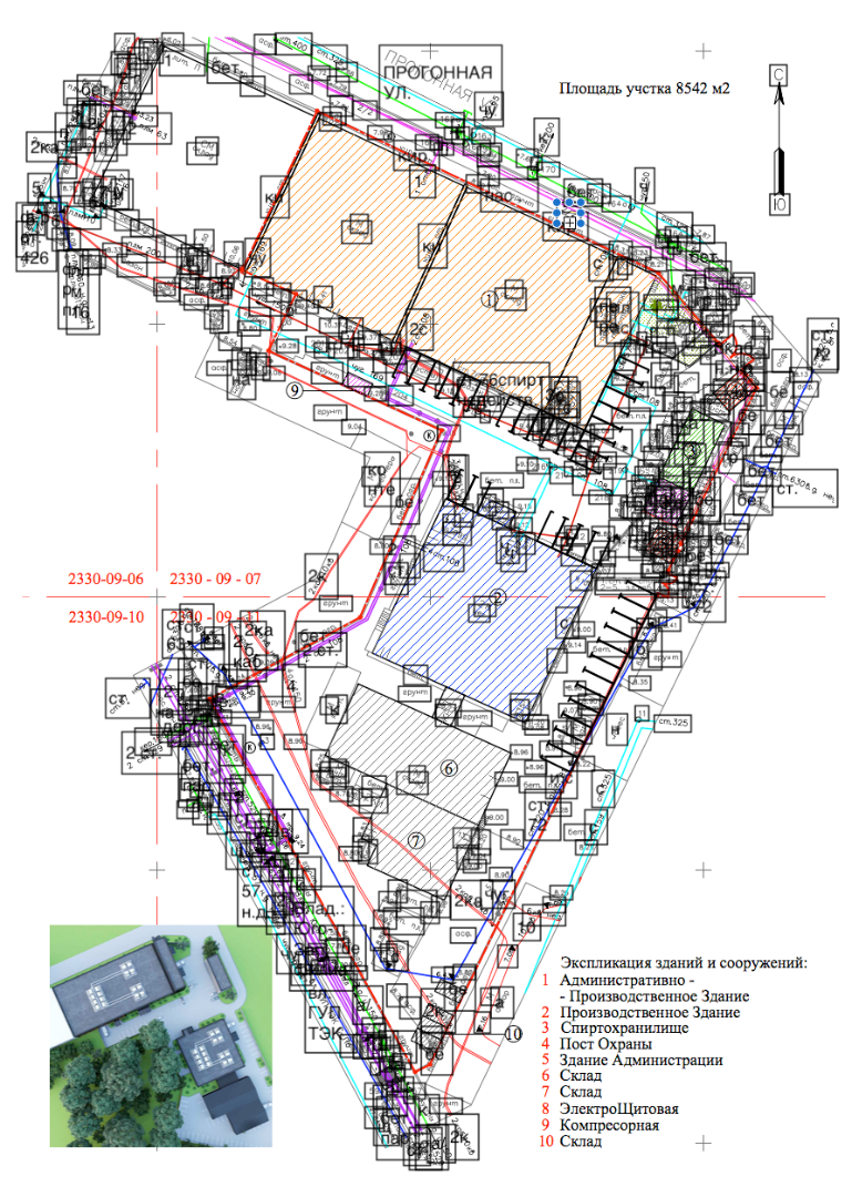
Собственная территория земельного участка 8542 кв м., на которой располагаются два основных здания и два ангара, и дополнительного строения для спиртохранилища. Производственный комплекс имеет ряд крупных контрактов по производству и поставкам галогенных осветительных приборов, как в Санкт- Петербурге и ЛО, так по РФ.
Общая площадь территории 8542 м, Парковка на 35 машиномест.
Со следующими параметрами:
-Производственные помещения 3692, 10 м.
-Технические помещения 350, 7 м.
-Офисные помещения 1297, 10м,
-МОП 943, 05 м,
-Спиртохранилище 124, 20 м.
-Склад 929, 75 м.
На экспликации указано расположение здании и сооружении:
1. Административно -- Производственное Здание
2. Производственное Здание
3. Спиртохранилище
4. Пост Охраны
5. Здание Администрации
6. Склад
7. Склад
8. Электро Щитовая
9. Компрессорная
10. Склад
Более подробная инф.:
● Земельный участок более 8 тысяч кв.м.
● 2 постоянных здания (2 и 3 этажа)
● Хозяйственно-складские помещения (ангары)
● Более 6 тысяч кв.м. полезной площади помещений
● Асфальтированный въезд/выезд для большегрузных машин
● Актуальные арендаторы помещений
● Все коммуникации проведены и подключены
Размещение
● Объект находится в зоне производственной застройки
Фрунзенского района Санкт-Петербурга
● Расстояние до метро Волковская - 7 минут пешком
● Высокая транспортная доступность
● Обеспечен необходимой инженерной инфраструктурой
Размещение - дополнения
● Близость ж/д путей
● В ближайшее время рядом откроется внешний скоростной
диаметр (ВСД)
● В перспективе возможно использование газа
● Имеется сервитут на газораспределительную сеть
● Обременения по договору ипотеки сняты
Земельный участок
● Площадь 8542 +/-32 кв.м
● Кадастровый номер 78:13:0007335:8
● Виды разрешенного использования: зона ТПД1 -
многофункциональная зона объектов производственного, складского
назначения, инженерной инфраструктуры IV и V классов опасности, а
также объектов общественно-деловой застройки
На участке размещено
● Производственно-административное здание
● Производственное здание
● Спиртохранилище
● Парковка на 35 машиномест
● Проезды из бетонных дорожных плит
● Хозпостройки
Площади на участке
● Производственные помещения 3629, 10 кв.м
● Технические помещения 350, 70 кв.м
● Офисные помещения 1297, 10 кв.м
● Места Общего Пользования 942, 05 кв.м
● Спиртохранилище 124, 20 кв.м
● Склады 929, 75 кв.м
| Сведения о недвижимости | |
|---|---|
| ID | 24 |
| Площадь участка, сот | 8542 |
| Возможное назначение | 103 |
| Тип коммерческой | Производственное помещение |
| Площадь, кв.м. | 4788.9 |
| Этаж | 1 |
| Этажность | 3 |
| Класс здания | B |
| Стоимость | 291 200 000 руб. |

Директор агентства
6 Июня, 2020





























